トーカン真鶴キャステール外観 真鶴リゾート
トーカン真鶴キャステール外観 真鶴リゾート
トーカン真鶴キャステール外観 真鶴リゾート



WEBコード:4042
真鶴駅から徒歩圏に建つマンション。お部屋は最上階!バスルームからも海を望めます。駅からバス便もあり、バス停はマンション目の前。学校も近くにありリゾートはもちろん定住にもおすすめです。
真鶴リゾート
| 所在地 | 神奈川県足柄下郡湯河原町吉浜 |
|---|---|
| 交通 | JR東海道本線 真鶴駅 徒歩 10 分 |
| アクセスランキング | 345位 |
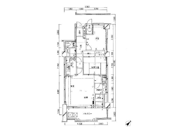
| 専有面積 | 76.14m2 |
|---|---|
| 間取り | 2LDK |
| 構造 | RC造 7階建 (7)階部分 |
| 管理費 | 22,062円/月 |
| 修繕積立金 | 12,694円(月) |
|---|---|
| 現況引渡 | 空室 相談 |