熱海自然郷 南箱根戸建
温泉引込可能 南箱根別荘
眺望 南箱根定住
リビングダイニング 南箱根リゾート
バルコニー 上多賀戸建
キッチン 上多賀別荘
リビングダイニング 上多賀定住
暖炉 上多賀リゾート
和室 南箱根戸建
玄関 南箱根別荘
バルコニー 南箱根定住
外観 南箱根リゾート












WEBコード:4924
傾斜を利用し山並みや大海原を望める個性豊かな別荘地。室内やバルコニーからは相模湾を望み、リビングダイニングにはアンティークな暖炉があります。温泉も引込可能です。
熱海戸建
| 所在地 | 静岡県熱海市上多賀 |
|---|---|
| 交通 | JR東海道新幹線 熱海駅 車 20 分 15 km |
| アクセスランキング | 487位 |
| 土地 | 419.00m² |
|---|---|
| 建物 | 166.67m² |
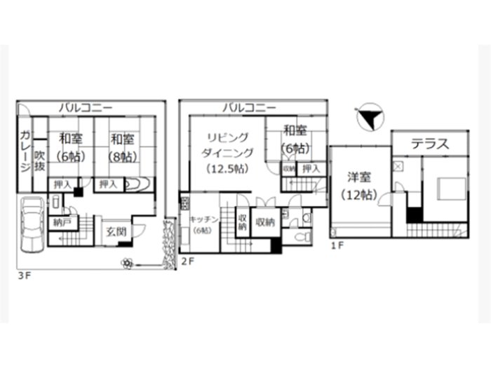
| 間取り | 4 LDK |
| 築年 | S48年12月 築 (2018年、2021年リフォーム済) |
| 共益費 | 83,900円(月) |
|---|---|
| 現況引渡 | 別荘として使用中 相談 |
| その他 | 設備:公営水道・東京電力・個別プロパン・個別浄化槽。■温泉の引込には温泉権利金と工事費用がかかります。 |