伊豆急伊豆高原別荘地現地外観 伊豆高原戸建
浴室 伊豆高原別荘
ウッドデッキ 伊豆高原定住
LDK 伊豆高原リゾート
LDK 伊豆高原戸建
キッチン 伊豆高原別荘
キッチン 伊豆高原定住
和室 伊豆高原リゾート
洋室 伊豆高原戸建
洗面室 伊豆高原別荘
トイレ 伊豆高原定住
洋室 伊豆高原リゾート
洋室 伊豆高原戸建
吹抜 伊豆高原別荘
吹抜 伊豆高原定住
サービスルーム 伊豆高原リゾート
外観 伊豆高原戸建

















WEBコード:7670
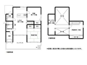
城ヶ崎海岸駅から徒歩圏に建つ別荘地内の戸建。LDKに薪ストーブがあります。2階にはサービスルームもあり、いろいろな用途に使用できそうです。定住はもちろんリゾート利用にもおすすめです。
伊豆高原戸建
| 所在地 | 静岡県伊東市八幡野 |
|---|---|
| 交通 | 伊豆急行線 城ヶ崎海岸駅 徒歩 9 分 |
| アクセスランキング | 186位 |
| 土地 | 436.00m² |
|---|---|
| 建物 | 95.69m² |
| 間取り | 4 LDK |
| 築年 | H12年12月 築 |
| 温泉権利付 | |
| 管理費(個人) | 19,200円(年) |
|---|---|
| 管理費(法人) | 78,600円(年) |
| その他 | 名義変更料等あり・分譲地管理規約あり・第3種国立公園・宅地造成等規制法・県条例第10条・22条指定区域。 |