







WEBコード:6794
【オーナーチェンジ物件】
現在賃貸中。玄関まではかなりの階段を上りますが、陽当り&通風良好で上段の為、周りの目が気にならなくプライベートが守られる環境です。令和4年4月中旬室内リフォーム済です。
真鶴収益
| 所在地 | 神奈川県足柄下郡真鶴町岩 |
|---|---|
| 交通 | JR東海道本線 真鶴駅 車 4 分 2.4 km |
| アクセスランキング | 532位 |
| 土地 | 204.58m² |
|---|---|
| 建物 | 84.46m² |
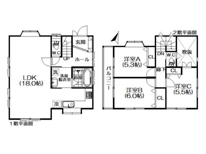
| 間取り | 3 LDK |
| 築年 | H16年7月 築 (2022年4リフォーム済) |
| 現況引渡 | 居住中 相談 |
|---|---|
| その他 | 設備:公営水道・個別浄化槽・個別PG・電気(選択制)。■収入:102万円/年・利回り:約8.0%(オーナーチェンジ)■リフォーム内容:全室クロス張替え、ベランダ塗装、水栓金物&ガス台交換済。■駐車スペースは縦列にて2台可能。 |