熱海市桃山現地外観 熱海戸建
浴室 熱海別荘
眺望 熱海定住
玄関ホール 熱海リゾート
玄関ホール 熱海戸建
LDK 熱海別荘
LDK 熱海定住
LDK 熱海リゾート
LDK 熱海戸建
洋室 熱海別荘
洋室 熱海定住
洋室 熱海リゾート
洗面室 熱海戸建
トイレ 熱海別荘
トイレ 熱海定住
浴室 熱海リゾート
洋室 熱海戸建
バルコニー 熱海別荘
プール 熱海定住
ガレージ 熱海リゾート




















WEBコード:7753
熱海市桃山温泉付きデザイナーズハウス!高台より相模湾・年間を通して開催される熱海花火大会も楽しめます。ホームエレベーター完備。駅・ラスカ熱海・商店街などが徒歩圏で生活に便利な立地です。
熱海戸建
| 所在地 | 静岡県熱海市桃山町 |
|---|---|
| 交通 | JR東海道新幹線 熱海駅 徒歩 10 分 |
| アクセスランキング | 57位 |
| 土地 | 442.97m² |
|---|---|
| 建物 | 221.92m² |
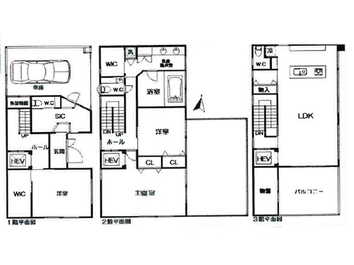
| 間取り | 3 LDK +WIC+ガレージ |
| 築年 | H30年6月 築 |
| 眺望 | 相模湾 ・ 花火 |
|---|---|
| 現況引渡 | 空家 相談 |
| その他 | 設備:東京電力・都市ガス・公営水道・合併浄化槽 【温泉について】熱海桃山水道温泉の供給・基本料金:9,240円/月(個人)・11,800円/月(法人) |