ダイアパレス湯河原郷現地外観 湯河原リゾート
温泉大浴場 湯河原別荘
眺望 湯河原定住
LDK 湯河原リゾート
LDK 湯河原リゾート
キッチン 湯河原別荘
洗面室 湯河原定住
プール 湯河原リゾート
外観 湯河原リゾート
外観 湯河原別荘










WEBコード:6553
大浴場や屋内プールなど共用施設充実のリゾートマンション。管理体制良好で小中学校も周辺にあり、リゾートにも定住にもおすすめ。お部屋はリフォーム済できれいです。間取りも3LDKと生活しやすく収納も豊富です。
湯河原リゾート
| 所在地 | 静岡県熱海市泉 |
|---|---|
| 交通 | JR東海道本線 湯河原駅 バス 10 分 桜ヶ丘 停歩 1 分 |
| アクセスランキング | 574位 |
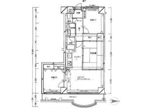
| 専有面積 | 63.74m2 |
|---|---|
| バルコニー | 9.50m2 |
| 間取り | 3LDK |
| 築年 |
H3年2月築 (2021年3月リフォーム済) |
| 構造 | SRC造 9階建 (4)階部分 |
| 管理費 | 26,800円/月 |
| 修繕積立金 | 11,500円(月) |
|---|---|
| 上下水道料金 | 4,710円(月) |
| その他 | 設備:公営水道、東京電力、集中プロパンガス、集中浄化槽。■リフォーム箇所:キッチンシャワー付水栓交換・ガラストップガスコンロ交換・電子コンベック交換・給湯器交換・ウォシュレット交換・廊下LDK洋室フローリング張替・和室リノベーション畳交換・全室クロス貼替・エアコン2台設置。 |