プレジデント熱海外観_高台のリゾートマンション 熱海マンション
共用部:温泉大浴場 熱海別荘
相模湾・初島・大島・伊豆半島を一望 熱海リゾート
LDK約21.4帖_窓の多い角部屋で明るく風通しの良い快適空間 熱海定住
リビング_家具家電付きでそのまま利用可能 伊豆マンション
ダイニング_緑を眺めながらお食事を楽しめます 伊豆別荘
L型システムキッチン_お洒落な黄色のキッチンで海を眺めながらお料理できます 伊豆リゾート
バルコニー_海の眺望を楽しめます 伊豆定住
和室8帖_2面採光の和室です 熱海マンション
和室収納_天袋付きの押入れ収納があり便利です 熱海別荘
洋室約6.2帖_東側バルコニーに面した明るいお部屋 熱海リゾート
室内状態良好で綺麗なお部屋です 熱海定住
洋室側バルコニー_こちらからは花火を楽しめます 伊豆マンション
眺望_各お部屋から自然豊かな景色が愉しめ癒されます 伊豆別荘
浴室_交換済みで清潔感があります 伊豆リゾート
シャワー付き洗面化粧台 伊豆定住
洗面脱衣室_室内洗濯機置場があります 熱海マンション
廊下_玄関からLDK方向 熱海別荘
共用部:サロン 熱海リゾート
マンションエントランス 熱海定住




















WEBコード:1103
熱海高台に建つ海望むリゾートマンション。お部屋は2階角部屋で4面に採光のある明るく風通しの良い快適な室内。バルコニーからは相模湾・大島・初島・花火を望み、玄関前廊下側からは緑の山々と熱海市街地の夜景が楽しめます!室内はリフォームされた美室!家具家電付きで、そのまま利用できるのも魅力的!またペット飼育可能な点も嬉しいポイントです!館内には温泉浴場もあり、眺望と温泉に癒されリゾートライフを満喫いただけます!
熱海マンション
| 所在地 | 静岡県熱海市桜木町 |
|---|---|
| 交通 | JR東海道新幹線 熱海駅 車 8 分 3.6 km |
| アクセスランキング | 389位 |
| 専有面積 | 82.31m2 |
|---|---|
| バルコニー | 6.86m2 |
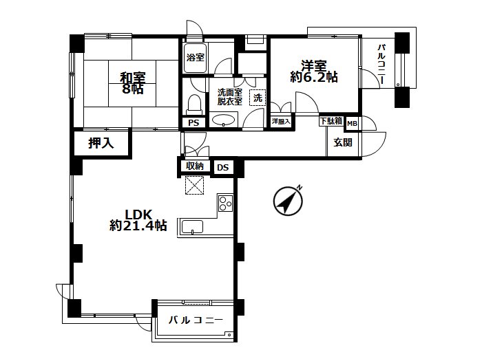
| 間取り | 2LDK |
| 築年 | S51年4月築 |
| 構造 | RC造 5階建 (2)階部分 |
| 管理費 | 27,420円/月 |
| 家具・家電付(全て無償) | |
| 修繕積立金 | 11,680円(月) |
|---|---|
| 眺望 | 相模湾 ・ 初島・大島 ・ 花火 |
| 現況引渡 | 別荘として使用中 相談 |
| その他 | ■2026年1月分(12/29引落)より管理費37,040円/月に変更となります■駐車場有:屋外14台(リゾート無料)・定住者5,000円/月■設備:公営水道・集中プロパン・ガス給湯器・電気(任意契約可)・集中浄化槽■家具家電付き■ペット可(細則有)■設備負担金:100,000円(購入時)■共用施設:サウナ付き温泉大浴場・ランドリールーム・サロン(集会室)・エレベーター■管理会社:(株)合人社計画研究所/全部委託(日勤) |