箱根ヴィレッジ11号棟 箱根リゾート
浴室 箱根リゾート
室内からの眺望 箱根リゾート
室内 箱根リゾート
室内 箱根リゾート
駐車場 箱根リゾート






WEBコード:5763
【11号棟】
箱根の自然に囲まれた環境に立つリゾートマンション!低層2階建ての1階部分。ドライエリアがあり明るく風通しの良い空間を感じられそう。別途戸別契約で室内に温泉を引き込む事も可能です。管理事務所のある9号棟には予約制の温泉大浴場や屋外プール、テニスコートなど共用施設も充実。周辺には美術館や観光名所があり、リゾート利用はもちろんレジャーの拠点にもおすすめです。
箱根リゾート
| 所在地 | 神奈川県足柄下郡箱根町仙石原 |
|---|---|
| 交通 | 箱根登山鉄道 箱根湯本駅 バス 23 分 品の木・箱根ハイランドホテル前 停歩 10 分 |
| アクセスランキング | 352位 |
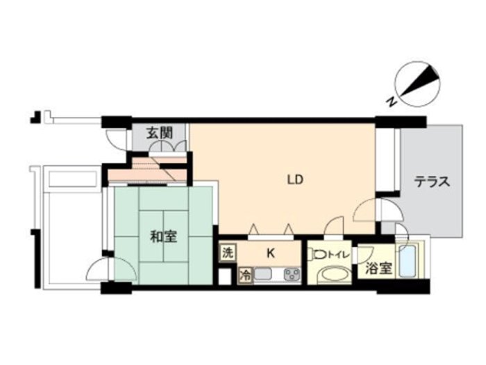
| 専有面積 | 50.22m2 |
|---|---|
| 間取り | 1LDK |
| 築年 | S56年4月築 |
| 構造 | RC造 2階建 (1)階部分 |
| 管理費 | 18,200円/月 |
| 修繕積立金 | 3,600円(月) |
|---|---|
| その他費用 | 6,471円(月) |
| 現況引渡 | 空室 相談 |
| その他 | ドライエリア7.91平米有■その他費用内訳:共用施設修繕費:2,000円/月・水道料金:3,200円/月・ガス料金:1,071円/月・ガス警報器料:200円/月※ガス料金は基本料金に加えて、使用料がかかります■ペット:可(規約有) |