湯河原町城堀現地外観 湯河原戸建
浴室 湯河原別荘
眺望 湯河原定住
お庭 湯河原リゾート
リビングダイニング 湯河原戸建
キッチン 湯河原別荘
和室 湯河原定住
外観 湯河原リゾート
外観 湯河原戸建
土間 湯河原別荘
和室 湯河原定住
駐車場 湯河原リゾート












WEBコード:5689
駅から徒歩圏の高台に建つ大型住宅!3階のリビングには坪庭があり、4階の浴室には大きな窓があり開放的な景色を眺めながらゆっくりお湯につかることができます。また別棟は一部分を移築して古民家風になっております。定住はもちろんリゾートにもおすすめです。
湯河原戸建
| 所在地 | 神奈川県足柄下郡湯河原町城堀 |
|---|---|
| 交通 | JR東海道本線 湯河原駅 徒歩 10 分 |
| アクセスランキング | 435位 |
| 土地 | 692.72m² |
|---|---|
| 建物 | 422.38m² |
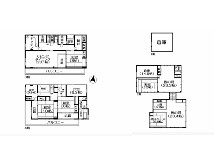
| 間取り | 5 LDK +離れ |
| 築年 | S59年1月 築 |
| 眺望 | 相模湾 ・ 初島 |
|---|---|
| 現況引渡 | 居住中 相談 |
| その他 | 設備:公営水道・東京電力・個別プロパン・本下水・駐車場:有(3~4台) ■埋蔵文化財包蔵地域・湯河原町景観条例 |