外観_デザイン賞を受賞したことのある個性的な外観のマンション 熱海マンション
24時間利用可能(清掃時間除く)な展望温泉大浴場 熱海別荘
熱海市街と初島浮かぶ海の眺望が広がります 熱海リゾート
バルコニー_眺望を遮らない透明パネル使用で開放感があります 熱海定住
リビングダイニング約26.7帖_南東向きで室内からも海が見えます 伊豆マンション
LDK_折り上げ天井で広さを感じられます 伊豆別荘
コンパクトなL型システムキッチン 伊豆リゾート
収納や作業などにも利用できるカウンターが多い室内 伊豆定住
室内からの眺望_熱海海上花火大会の鑑賞も楽しめます 西熱海マンション
押入付きの和室_心和む畳のお部屋です 西熱海別荘
洗面室 西熱海リゾート
室内浴室 西熱海定住
温水洗浄便座付きトイレ 熱海マンション
玄関_下駄箱付き 熱海別荘
リビング_明るく広い空間でゆったり快適に寛げます 熱海リゾート
眺望 熱海定住
フロントロビー 伊豆マンション
展望ラウンジ 伊豆別荘
展望デッキ 伊豆リゾート
15棟からなるヴィラタイプのマンション 伊豆定住




















WEBコード:1159
緑豊かな熱海高台に建つ「ロイヤルヴィラ熱海」。15棟からなるヴィラタイプ、建築デザイン賞を受賞したことのある個性的な外観のマンション!5階部分のお部屋は南東向きの1LDK。約26帖のゆったり快適に寛げるリビングダイニング。バルコニーや室内から海・熱海市街を見下ろし、熱海海上花火大会の鑑賞も楽しめます!また、館内には24時間利用可能な展望温泉大浴場もあり、開放感ある眺望と温泉に癒されます!スーパーや市役所などが揃う市街中心地にも車10分程の距離でリゾートはもちろん定住にもご利用いただけます!
熱海マンション
| 所在地 | 静岡県熱海市西熱海町1丁目 |
|---|---|
| 交通 | JR伊東線 来宮駅 徒歩 17 分 |
| アクセスランキング | 631位 |
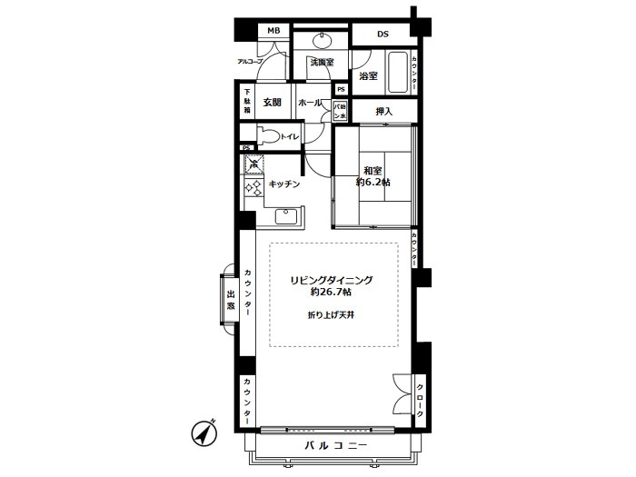
| 専有面積 | 81.40m2 |
|---|---|
| バルコニー | 5.25m2 |
| 間取り | 1LDK |
| 築年 | H4年1月築 |
| 構造 | RC造 13階建 (5)階部分 |
| 管理費 | 40,700円/月 |
| 修繕積立金 | 13,680円(月) |
|---|---|
| 水道基本料 | 6,146円(月) |
| 眺望 | 相模湾 ・ 市街・夜景・初島 ・ 花火 |
| 現況引渡 | 別荘として使用中 相談 |
| その他 | ■駐車場有(無料):32区画(屋根付機械式2段28台・屋外4台)内、6区画5,000円/月(空無)■設備:公営水道・公共下水・都市ガス・電気(選択制)■24時間オートロック■管理:全部委託/日勤(9時~17時、金・土は19時まで)無休■ペット不可■インターネット:光回線対応可■共用施設:ジャグジー付き温泉大浴場(24時間利用可、清掃時間除く)、サウナ17時~21時/ゲストルーム(1,500円/泊)/コインランドリー/展望ラウンジ■その他交通:JR東海道新幹線「熱海駅」より約2.3km(車約10分)/JR東海道本線「熱海駅」よりバス約14分「銀山入口」停歩約10分(約550m) 【周辺施設】マックスバリュ熱海店まで約2.5km(車約10分)/セブンイレブン熱海梅園店まで約1.2km(車約4分)/熱海市役所まで約2.4km(車約9分)/熱海梅園まで約1.1km(車約3分)/梅園ヘルスケアクリニックまで約220m(徒歩約4分)/西熱海ゴルフコースまで約4.3km(車約10分)/来宮神社まで約1.6km(車約5分) |