熱海自然郷_海望む温泉権利付き戸建 熱海戸建
伊豆石の浴室_豊かな自然の眺めと温泉を堪能いただけます 熱海別荘
網代湾・伊豆大島・花火を望みます 熱海リゾート
地下のバルコニーとサウナ、マイナスイオンたっぷりの緑に囲まれ森林浴気分を味わえ癒されます 熱海定住
広縁付きの趣ある和室、便利な押入れ収納もあります 伊豆戸建
LDK_木の温もり感じる室内、広い開口部から四季折々の自然を愉しめ、ゆったり寛げます 伊豆別荘
洋室_2面採光の明るい室内 伊豆リゾート
寝室_照明や装飾などインテリア次第で、お洒落で快適なお部屋にできます 伊豆定住
広縁_暖かな陽が入る心地よい空間 伊豆多賀戸建
バルコニー_LDKに面しており、緑の中でブランチやBBQ等が楽しめます 伊豆多賀別荘
システムキッチン_便利なカウンター付きで吊戸棚もあり収納豊富です 伊豆多賀リゾート
3階に広い洋室、陽当りの良いバルコニーに出られます 伊豆多賀定住
和室の床の間 熱海戸建
洗面化粧台と洗濯機置場 熱海別荘
洋室の棚_和の装飾で和モダンな雰囲気、綺麗な室内です 熱海リゾート
地下室_趣味や収納など多目的に利用可能 熱海定住
和室_心和む畳の室内でリラックスして過ごせます 伊豆戸建
洋室内装_各居室広めの造りで陽当り良好です 伊豆別荘
洋室内装_リモートワークにも便利なスペース 伊豆リゾート
駐車スペース1台可 伊豆定住




















WEBコード:1194
自然豊かな熱海高台の大型別荘地に建つ温泉権利付き戸建!海・伊豆大島・花火を望む4SLDK!2019年に一部リフォーム済で外壁塗装やデッキの新設が施されています。各居室ゆったりとした広さがあり、明るく風通しの良い快適な室内空間!伊豆石を使用した温泉浴室、マイナスイオンたっぷりの緑に囲まれたバルコニーには檜を使用したサウナが設置され心身共に癒されます!また、LDKに面したバルコニーでは緑の中でブランチやBBQが可能!多目的に利用できる地下室や駐車場1台分、家庭菜園可能な和風のお庭もあります!四季の変化を愉しみ、温泉に癒されリゾートライフを満喫いただける物件です!
熱海戸建
| 所在地 | 静岡県熱海市上多賀 |
|---|---|
| 交通 | JR東海道新幹線 熱海駅 車 20 分 7 km |
| アクセスランキング | 142位 |
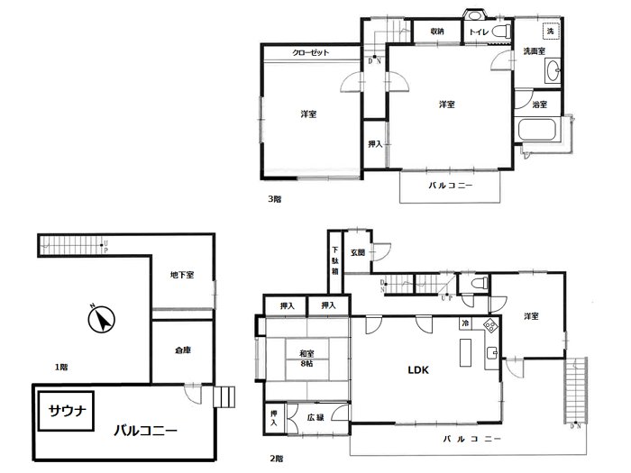
| 土地 | 523m² |
|---|---|
| 建物 | 152.14m² |
| 間取り | 4 LDK +S |
| 築年 | H2年3月 築 (平成2年4月増築) |
| 温泉付 | |
| 温泉有効期限 | R12年5月10日 |
|---|---|
| 公益費(個人) | 67,980円(年) |
| 公益費(法人) | 240,240円(年) |
| 固定資産税等 | 61,600円(年) |
| 眺望 | 相模湾 ・ 大島 ・ 花火 |
| 現況引渡 | 別荘として使用中 相談 |
| その他 | ■駐車場有:1台可■設備:公営水道・個別プロパン・個別浄化槽・側溝・電気(選択制)・サウナ・エアコン5台・照明器具・カーテン・家具■分譲地名義変更料:9,900円■温泉:名義変更料55,000円・使用料6,050円/月(5立方迄)超過料253円/1立方・更新料330,000円/10年毎■リフォーム履歴:2019年外壁・屋根塗装済/1F・地下1Fデッキ新設/1Fデッキ防水処理■静岡県建築基準条例・宅造法・景観法・第2種風致地区・熱海自然郷自主規制■その他交通:JR伊東線「伊豆多賀駅」より約3.2km |