外観_川奈駅より徒歩5分、スーパーやホームセンター等商業施設が近く生活至便 伊東戸建
浴室_重厚感のある石風呂、大きな窓付きで換気良好 伊東別荘
眺望_緑の多い環境 伊東リゾート
庭_陽当り良好で手入れし易い広さです 伊東定住
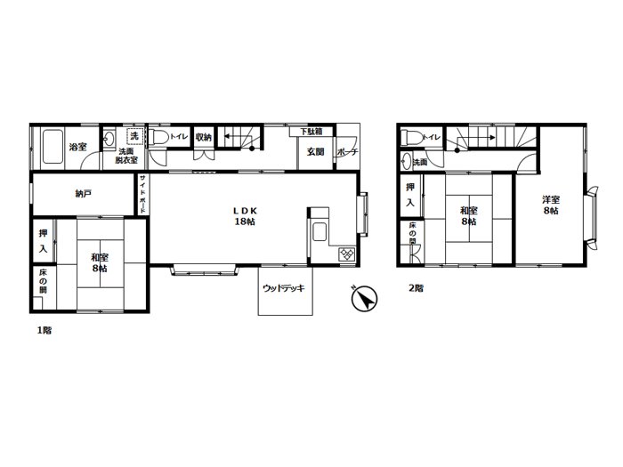
LDK18帖_ご家族でゆったり寛げる広さがあります 川奈戸建
リビングダイニング_南面に開口部が多く明るい室内、窓の先にはお庭に続くウッドデッキがあり開放的 川奈別荘
L字型システムキッチン_出窓付きで明るくリビングとコミュニケーションの取りやすい対面型 川奈リゾート
ウッドデッキ_陽当り良好で雨の日のお洗濯も安心の屋根付きです 川奈定住
1階和室8帖_リビング隣の和室、納戸や押入れ付きで収納充実 伊豆戸建
1階和室8帖_落ち着きある畳のお部屋です 伊豆別荘
和室納戸_季節ものの収納等に便利 伊豆リゾート
吹抜けの階段部分_窓からたっぷり光が入り明るい空間 伊豆定住
2階洋室8帖_棚が豊富で、本の整理や飾り棚として利用できます 伊東戸建
2階洋室_各居室窓が多く陽当り・風通し良好 伊東別荘
2階和室8帖_床の間と押入れ収納付き 伊東リゾート
2階和室8帖 伊東定住
洗面脱衣室_ゆとりある広さ、収納付き洗面化粧台があります 川奈戸建
トイレ・浴室・階段などに手摺りがあり、高齢の方やお子様にも優しい造り 川奈別荘
玄関_下駄箱付き、明るくゆとりある玄関ホールです 川奈リゾート
外観_石垣や庭木が目隠しになり周りの視線も気になりません 川奈定住




















WEBコード:1420
伊豆急行線「川奈駅」より徒歩約5分の庭付き一戸建!南面に陽当り良好なウッドデッキ!窓の多い明るいリビングと使い勝手の良いL字型キッチン!全居室8帖以上のゆとりある間取りで納戸や収納棚も充実!周辺はスーパー・コンビニ・郵便局・ホームセンター・ショッピングモール等商業施設が揃い生活便利な好立地!また、四季折々の自然を感じられる「小室山公園」、釣りや海水浴などのマリンレジャーを楽しめる「川奈いるか浜」も近く、定住・別荘どちらにもおすすめの物件です!
伊東戸建
| 所在地 | 静岡県伊東市川奈 |
|---|---|
| 交通 | 伊豆急行線 川奈駅 徒歩 5 分 |
| アクセスランキング | 72位 |
| 土地 | 165.31m² |
|---|---|
| 建物 | 121.66m² |
| 間取り | 3 LDK +S |
| 築年 | H1年6月 築 |
| 現況引渡 | 空家 即可 |
|---|---|
| その他 | ■駐車場無■接道:南東側幅員約4m私道、接面8m位置指定有■設備:水道(休止中)・本下水・個別プロパン・電気・エアコン・照明・アンテナ等 【周辺施設】 東急ストア川奈店まで徒歩7分(約450m)/セブンイレブン伊東川奈店まで徒歩約10分(約800m)/川奈郵便局まで徒歩3分(約170m)/ニトリ伊東川奈店まで徒歩14分(約950m)/ショッピングモールアピタ伊東店まで徒歩18分(約1200m)/伊東市立南小学校まで徒歩19分(約1400m)/国立公園 小室山公園まで徒歩12分(約850m)/川奈いるか浜まで車4分(約1900m) |