インフィニティ水盤 湯河原町戸建
浴室 湯河原町別荘
眺望 湯河原町定住
玄関 湯河原町リゾート
LDK 湯河原町戸建
LDK 湯河原町別荘
LDK 湯河原町定住
洋室 湯河原町リゾート
洗面室 湯河原町戸建
眺望 湯河原町別荘
デッキテラス 湯河原町定住
洋室 湯河原町リゾート
眺望 湯河原町戸建
外観 湯河原町別荘
眺望 湯河原町定住















WEBコード:8789
湯河原町吉浜の高台に建つ新築戸建!海や伊豆半島を望みます。バイオエタノール暖炉付アウトドアリビングやインフィニティ水盤などがデッキテラスにあり、非日常感を感じられそうです。定住はもちろんリゾートにもおすすめです。
湯河原戸建
| 所在地 | 神奈川県足柄下郡湯河原町吉浜 |
|---|---|
| 交通 | JR東海道本線 真鶴駅 |
| アクセスランキング | 114位 |
| 土地 | 998.00m² |
|---|---|
| 建物 | 133.32m² |
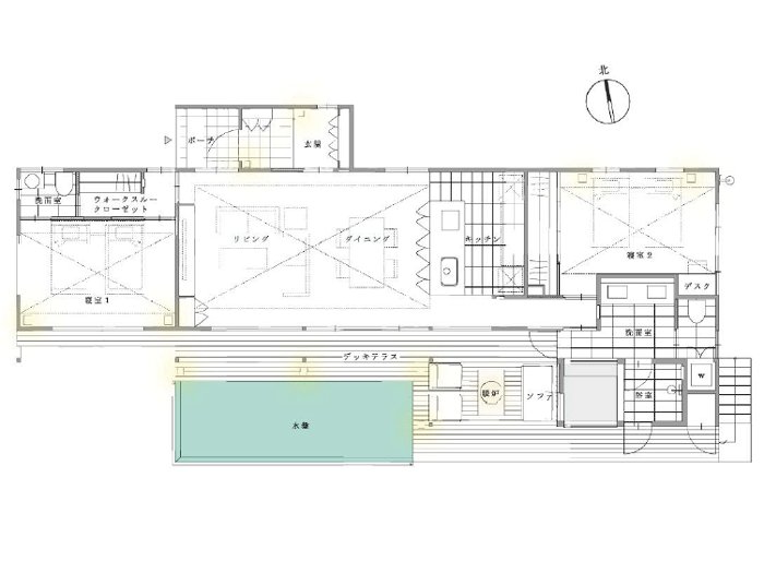
| 間取り | 2 LDK |
| 築年 | R7年4月 築 |
| 眺望 | 相模湾 ・ 花火 |
|---|---|
| その他 | 設備:東京電力・公営水道・個別LPガス |