ベルクレール熱海現地外観 熱海リゾート
浴室 熱海リゾート
眺望 熱海リゾート
玄関ホール 熱海リゾート
洋室 熱海リゾート
リビングダイニング 熱海リゾート
リビングダイニング 熱海リゾート
リビングダイニング 熱海リゾート
リビングダイニング 熱海リゾート
洋室 熱海リゾート
キッチン 熱海リゾート
洗面室 熱海リゾート
洗面室 熱海リゾート
洗面室 熱海リゾート
トイレ 熱海リゾート
バルコニー 熱海リゾート
眺望 熱海リゾート
眺望 熱海リゾート


















WEBコード:7077
駅から徒歩圏に建つリゾートマンション!お部屋もリフォーム済できれいです。共用施設も充実しており、定住はもちろんリゾートにもおすすめです。
熱海リゾート
| 所在地 | 静岡県熱海市水口町 |
|---|---|
| 交通 | JR東海道新幹線 熱海駅 車 9 分 1.6 km |
| アクセスランキング | 82位 |
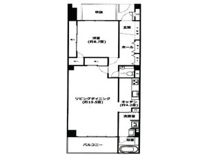
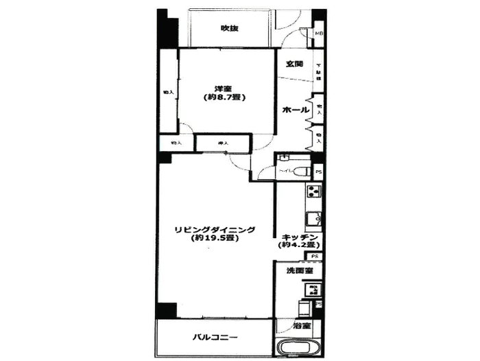
| 専有面積 | 83.12m2 |
|---|---|
| バルコニー | 7.85m2 |
| 間取り | 1LDK |
| 築年 |
H3年7月築 (2026年1月リフォーム済) |
| 構造 | 10階建 (5)階部分 |
| 眺望 | 相模湾 ・ 花火 |
|---|---|
| 現況引渡 | 空室 相談 |
| その他 | 設備:電力・都市ガス・公営水道・公共下水 ■ペット:可(規約有) ■その他交通:JR伊東線「来宮」 徒歩4分 |