伊東市富戸現地外観 富戸収益
全室個室露天風呂 富戸収益
眺望 富戸収益
客室 富戸収益
客室 富戸収益
全室個室露天風呂 富戸収益
客室 富戸収益
全室個室露天風呂 富戸収益
客室 富戸収益
全室個室露天風呂 富戸収益
全室個室露天風呂 富戸収益
前面道路 富戸収益
敷地内 富戸収益
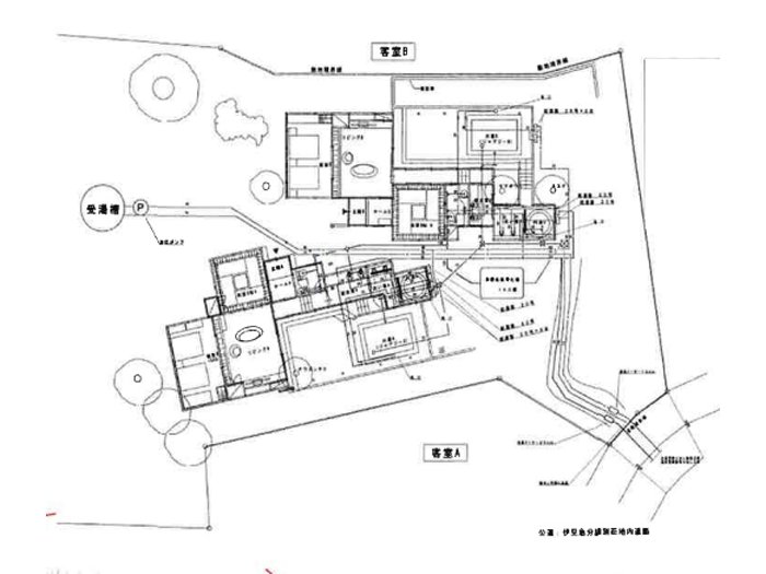
本館5室+食事処6室














WEBコード:7234
【売旅館/オーナーチェンジ】
森に囲まれ静かな環境に建つ全室個室露天風呂付き温泉旅館。本館5室+食事処6室、別館2室。現在、営業中!。露天風呂からは開放的な景色を眺めながら良質な温泉を堪能できます。オペレーション付の販売・家具付き・空室引き渡しなど相談可能。
伊豆高原収益
| 所在地 | 静岡県伊東市富戸 |
|---|---|
| 交通 | 伊豆急行線 城ヶ崎海岸駅 車 4 分 1.4 km |
| アクセスランキング | 225位 |
| 土地 | 2637.02m² |
|---|---|
| 建物 | 541.16m² |
| 家具・家電付(相談) | |
| 現況引渡 | 使用中(営業中)相談 |
|---|---|
| その他 | 物件①(本館)建物 339.19平米・木造亜鉛メッキ鋼板葺2階建・平成14年5月築/物件②(茶室)建物 30.25平米・木造スレート葺平家建・昭和57年6月築/物件③(別館A)建物 87.44平米・木造合金メッキ鋼板葺平家建・平成17年7月築/物件④(別館B) 建物 84.28平米・木造合金メッキ鋼板葺平家建・平成17年7月築 ■その他交通:伊豆急行線「伊豆高原」 車6分 |