熱海自然郷現地外観 南箱根戸建
浴室 南箱根別荘
眺望 南箱根戸建
LDK 南箱根リゾート
LDK 南箱根戸建
LDK 南箱根別荘
和室 南箱根戸建
和室 南箱根リゾート
洗面室 南箱根戸建
トイレ 南箱根別荘
玄関ホール 南箱根戸建
眺望 南箱根リゾート












WEBコード:8788
管理の行き届いた別荘地内に建つ戸建。海はもちろん初島・大島を望むロケーション。路地の突き当りに位置し、静かな環境。定住はもちろんリゾートにもおすすめです。
南箱根戸建
| 所在地 | 静岡県熱海市上多賀 |
|---|---|
| 交通 | JR東海道新幹線 熱海駅 車 23 分 8.8 km |
| アクセスランキング | 122位 |
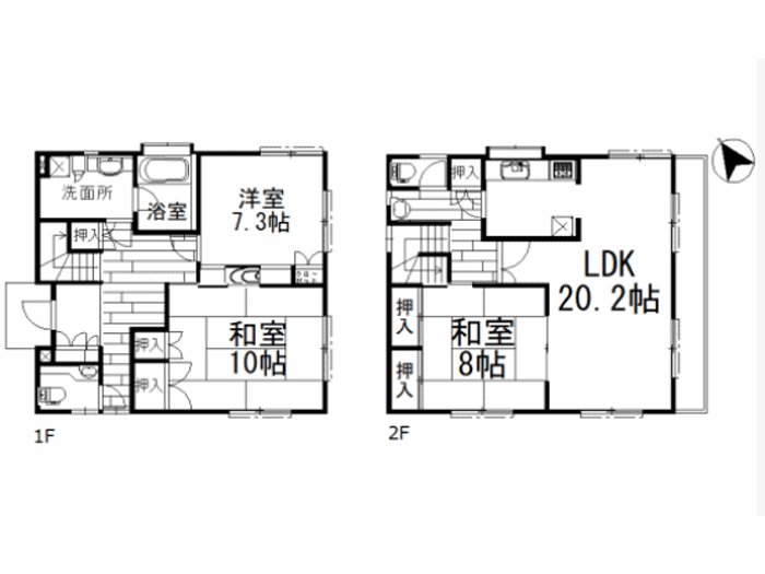
| 土地 | 162m² |
|---|---|
| 建物 | 124.01m² |
| 間取り | 3 LDK |
| 築年 | H8年10月 築 |
| 管理費(個人) | 60,060円(年) |
|---|---|
| 管理費(法人) | 180,180円(年) |
| 眺望 | 相模湾 ・ 初島・大島 |
| 現況引渡 | 空家 相談 |
| その他 | 設備:公営水道・東京電力・個別プロパン・個別浄化槽【温泉について】権利金保証料:2,200,000円・名変料: 55,000円・使用料(月額):6,050円(5立方迄・超過料:253円/立方)・更新料:330,000円・温泉計量器取付費用:38,500円・温泉引込工事費用別途かかります ■区画名義変更料:9,900円。 |