南箱根ダイヤランド_温泉権利付き一戸建 南箱根戸建
浴室_温泉入浴を楽しめます 南箱根別荘
緑豊かな環境_2階から富士山が見えます 南箱根リゾート
自然の美しさを感じるイングリッシュガーデン風のお庭 南箱根定住
丈夫な木材を使用したウッドデッキ 函南戸建
LDK15帖_お庭の見える明るい室内、木材の腰壁で温かみのある内装です 函南別荘
ゆったり寛げるリビング、窓の先にウッドデッキが続きます 函南リゾート
断熱・防音効果のある二重サッシが設置されています 函南定住
明るい黄色のL字型システムキッチン、吊戸棚付きで収納充実 伊豆戸建
吹抜け上部に採光面があり自然な光が入ります 伊豆別荘
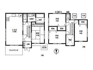
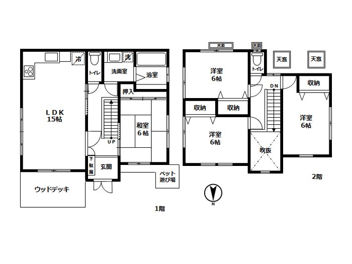
2階洋室_2階に6帖の洋室が3部屋あり、各居室収納付きです 伊豆リゾート
2階洋室_全居室2面採光で明るく、豊かな緑の眺めに癒されます 伊豆定住
2階洋室_勾配天井で圧迫感なく快適に過ごせます 南箱根戸建
洋室照明_家具やエアコン・照明付き 南箱根別荘
1階和室6帖 南箱根リゾート
シャワー付き洗面化粧台と洗濯機置場 南箱根定住
玄関上が吹抜けで開放感があります 函南戸建
可愛いペットの遊び場もあります 函南別荘
駐車場2台可 函南リゾート
別荘地メイン通沿いに建ち2階から富士山も望めます 函南定住




















WEBコード:1500
管理体制整った別荘地内、2階から富士山望む温泉権利付き一戸建!窓が多く吹抜けや天窓もあり明るく快適な室内環境!お庭は自然の美しさをそのまま感じられるイングリッシュガーデン風!丈夫な木材が使用されたウッドデッキや駐車場2台分付き!内外装一部リフォーム済で綺麗な建物です!別荘地内施設も充実しておりのんびりとリゾートライフを楽しめます!
南箱根戸建
| 所在地 | 静岡県田方郡函南町平井 |
|---|---|
| 交通 | JR東海道新幹線 熱海駅 車 25 分 13 km |
| アクセスランキング | 28位 |
| 土地 | 264.55m² |
|---|---|
| 建物 | 94.77m² |
| 間取り | 4 LDK |
| 築年 | H17年5月 築 (2024年3月外装リフォーム済) |
| 温泉付 | |
| 温泉有効期限 | R10年5月19日 |
|---|---|
| 家具・家電付 | |
| 環境整備費 | 66,176円(年) |
| 業務委託費 | 4,400円(年) |
| 固定資産税等 | 51,000円(年) |
| 眺望 | 富士山 |
| 現況引渡 | 別荘として使用中 相談 |
| その他 | ■駐車場有:2台可■設備:公営水道・個別プロパン・個別浄化槽・電気(選択制)■水道基本料:2,200円/月■温泉:基本料2,530円/月(10立方迄・メーター使用料含)・超過料330円/立方・名義変更料110,000円(税込)・更新料440,000円/10年毎(税込) 【リフォーム箇所】 2024年3月:屋根・外壁塗装済/2024年4月:二重サッシ設置済/2025年1月:玄関ドア交換/2025年3月:ガスコンロ・換気扇交換 |