伊東市玖須美元和田_一戸建 伊東戸建
閑静な住宅地内に建ちます 伊東別荘
2階から伊東市街と海を望みます 伊東リゾート
外観_南面バルコニーです 伊東定住
ガーデニング可能なお庭スペース 南伊東戸建
家庭菜園も楽しめます 南伊東別荘
玄関_下駄箱付き 南伊東リゾート
リビング_2面採光で明るい室内 南伊東定住
リビング_そのままお庭へ出られます 伊豆戸建
ダイニングキッチン 伊豆別荘
1階和室6帖 伊豆リゾート
2階和室6帖_各居室窓が多く風通しの良い快適な室内 伊豆定住
2階和室6帖_各居室6帖以上でゆとりある広さです 伊東戸建
2階洋室 伊東別荘
洗面脱衣室 伊東リゾート
浴室 伊東定住
駐車場有 南伊東戸建
眺望 南伊東別荘


















WEBコード:1575
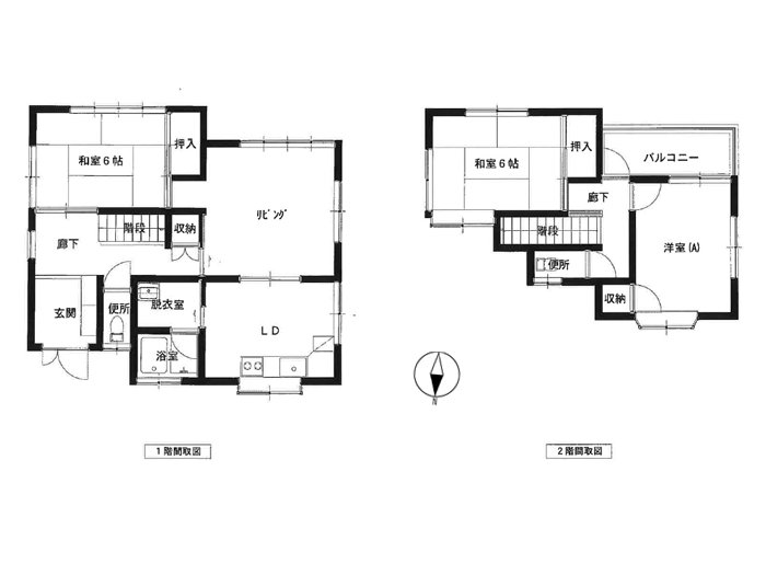
伊東市役所近くの閑静な住宅地、海・伊東市街を望む一戸建です。ゆとりある3LDKの間取りで各居室6帖以上のゆったり寛げる広さがあります。ガーデニング可能なお庭スペースと駐車場付きです!
伊東戸建
| 所在地 | 静岡県伊東市玖須美元和田 |
|---|---|
| 交通 | JR伊東線 伊東駅 車 8 分 2.5 km |
| アクセスランキング | 550位 |
| 土地 | 190m² |
|---|---|
| 建物 | 84.46m² |
| 間取り | 3 LDK |
| 築年 | H1年3月 築 |
| 眺望 | 相模湾 ・ 花火 |
|---|---|
| 現況引渡 | 空家 相談 |
| その他 | ■駐車場有:1台可■設備:公営水道・個別浄化槽・個別プロパン■他私道持分:7.99平米の2分の1、97.9平米の4分の1、354.17平米の40分の1■接道:東南側幅員4m公道■静岡県建築基準条例・宅地造成等規制法区域内・高度地区(第2種) |