熱海

熱海 1,890万円

WEBコード:1123

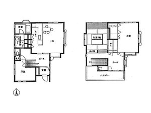
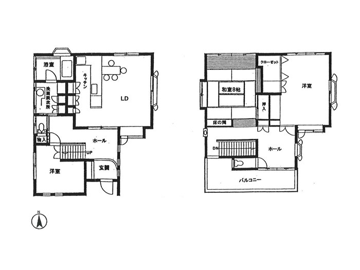
相模湾・熱海市街・花火一望の駐車場付き2階建て住宅!市街中心地から少し離れた閑静な住宅地でありながら、スーパー・学校・病院等の生活施設が徒歩圏内に揃い生活便良好な立地!窓の多い明るく風通しの良いLDK、広縁付きの趣ある和室、ウォークインクローゼット付きの洋室や階段ホールもゆったり広めの造り。また、各所に手摺りが付き、段差の少ないバリアフリーでお子様やご高齢の方も生活し易い快適な室内環境です。夜には熱海市街地の夜景や年に十数回行われる熱海海上花火大会の鑑賞も楽しめ、定住、リゾートどちらにもおすすめの物件です!
熱海戸建

所在地 静岡県熱海市桜町
交通 JR東海道新幹線  熱海駅   車 6 分 2.8 km 
アクセスランキング 2位

物件 詳細

土地 143.63m²
建物 124.34m²
間取り 3 LDK +WIC
築年 H1年1月 築 (平成9年リフォーム済)
眺望 相模湾 ・ 市街・夜景・真鶴半島 ・ 花火
現況引渡 別荘として使用中 相談
その他 ■駐車場有:普通乗用車1台可■接道:南側幅員約4.5m公道に約10m接面■設備:公営水道・公共下水・都市ガス・電気・WIC■静岡県建築基準条例・宅造法■その他交通:JR伊東線「来宮駅」より約2.2km・JR東海道本線「熱海駅」よりバス12分「神社前」停歩約250m
【周辺施設】マックスバリュエクスプレス熱海小嵐店まで約650m(徒歩約12分)/セブンイレブン熱海小嵐店まで約500m(徒歩約9分)/熱海所記念病院まで約800m(徒歩約15分)/熱海市立第二小学校まで約500m(徒歩約9分)/JAふじ伊豆熱海支店まで約650m(徒歩約12分)

オプション・特徴

  • 月新情報(1ヶ月以内の物件)
  • 海が見える
  • 駐車場がある
  • 平坦地
  • 特選物件
  • 花火が見える
  • 管理費なし(水光熱費等は別途)

間取り・地形

image

地図

※地図は会員の方のみ閲覧できます。

おすすめの物件

来宮

熱海市昭和町

1,890万円

南箱根ダイヤランド

田方郡函南町平井

1,980万円

伊豆富士見高原小松ヶ原

伊豆の国市奈古谷

1,980万円

南箱根ダイヤランド

田方郡函南町平井

1,800万円

会員マップ

※空から探すは会員の方のみご利用できます。
ご相談・お問い合わせ