伊豆高原プールヴィラ 伊豆高原収益
眺望 伊豆高原収益
プール 伊豆高原収益
伊豆高原プールヴィラ 伊豆高原収益




WEBコード:7278
【パーパスリゾート伊豆高原】
温泉・サウナ・プールが揃った伊豆のリゾート邸宅。現在、運営中!このまま収益物件として、又は定住や別荘としてもおすすめです。
伊豆高原収益
| 所在地 | 静岡県伊東市八幡野 |
|---|---|
| 交通 | 伊豆急行線 伊豆高原駅 車 5 分 2.2 km |
| アクセスランキング | 115位 |
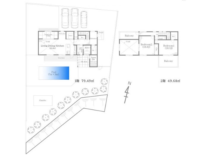
| 土地 | 449.0m² |
|---|---|
| 建物 | 129.17m² |
| 間取り | 2 LDK |
| 築年 | R6年9月 築 |
| 温泉付 | |
| 温泉有効期限 | R8年9月30日 |
|---|---|
| 現況引渡 | 空家 即可 |
| その他 | 設備:上水道・個別浄化槽・プロパンガス。■伊豆高原親和会/年会費有(個人所有者:19,200円/年、法人所有者:78,600円/年)【温泉について】更新料:385,000円/5年間・名義変更料:220,000円(税込)■水道/「私営水道」であり独自の規定が設けられておりますので、遵守して下さい。 |