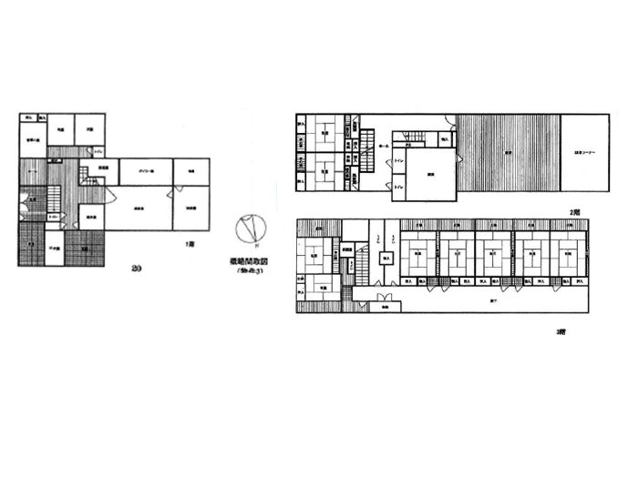
箱根町強羅現地外観 箱根戸建

WEBコード:7995
箱根町強羅、自然に囲まれた静かな環境に建つ温泉権付き売保養所!宿泊施設などの事業用としておすすめの物件です。リフォーム・再建築可。
箱根戸建
| 所在地 | 神奈川県足柄下郡箱根町強羅 |
|---|---|
| 交通 | 箱根登山鉄道ケーブル線 早雲山駅 徒歩 8 分 |
| アクセスランキング | 575位 |
| 土地 | 1526.10m² |
|---|---|
| 建物 | 805.65m² |
| 築年 | S41年1月 築 |
| その他 | 設備:公営水道・プロパンガス・浄化槽 ■温泉受湯権有。 |
|---|